|
Comment on this article |
View comments |
Email this Article
|
|
Review :: Media |
|
RFU and Media Production Space Proposal |
Current rating: 0 |
by Danielle (No verified email address) |
30 Sep 2005
|
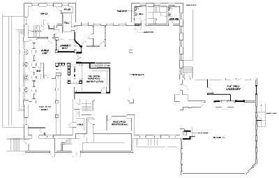
Here are two proposals:
1) a process proposal to facilitate a consensus decision by our Wednesday deadline.
2) a layout of RFU and media production facilities on the first floor. |
Click on image for a larger version  |
PROCESS PROPOSAL
The IMC makes decisions via consensus. Consensus is reached when all concerns about a proposal are resolved. In the consensus process, proposals as well as concerns are owned by the group as a whole, not the individuals raising them.
We are all IMC members looking out for the short and long term interests of the organization. When framing your proposals and concerns, consider the community we serve, the needs of all working groups, and financial health of the IMC.
1) View the proposal online.
2) Post a comment at the above URL to express concerns about the proposal.
3) Upload/post alternate proposals to the same URL in an attempt to resolve concerns.
4) Come to the RFU meeting Tuesday at 8 pm to hear from RFU members and provide input. The RFU meeting is open to the public.
5) If a resolution is not reached by the end of the RFU meeting, we can designate a caucus to meet afterwards to try to formulate a proposal to resolve outstanding concerns. A caucus is a small group of people with representatives of the various outstanding concerns.
6) Come to the Space meeting Wednesday at 8 pm which is also open to the public. Steering has empowered those who attend space on Wednesday to make a final decision on the layout of the building. Wednesday is our drop dead deadline if we are to meet our construction deadline.
LAYOUT PROPOSAL:
Please view and respond using comments to the proposal *online*
The proposed layout is drawn to scale. What is being proposed is only new construction (in red and yellow). The green (furniture) is only to show how it is possible to fit into the space and does not need to be condensed to at this time.
This proposal:
- Makes the smallest number of changes to the space. This means it will be the most cost effective.
- Provides working space for every media production group: RFU, radio pre-production, video, print, as well as IMC staff. It gives finance access to the safe. In addition, we can consider additional production space in the lower level for all groups as needed.
- Provides for wheelchair clearance for the RFU airshifter and guests.
- Provides space for 3-5 in-studio guests and a lounge outside where guests can wait and see into the studio.
- Provides space for all equipment and some CD storage.
- Allows the airshifter to see into the production room to broadcast group interviews.
- Is fully sound proof while keeping RFU visible to the community. The two windows would be made of two 5' x 4' panes of glass 1/2 to 3/4" thick. Each pane would be individually framed and sealed.
In the future, if RFU finds it needs more space, it can grow east into the production room and a new room can be built for other media production.
This proposal requires RFU to use a standard 12-channel mixing board which is about 24"-30". There has been an offer of a $500 donation for a new board. I propose IMC make up the $1000-1500 difference when it takes out a construction loan and have RFU pay this back over time.
The logic behind this is that building a brand new east wall to accomodate the huge board is significantly more expensive than buying a new board.
The current 42" by 64" mega board would be located in the balcony and used by shows and RFU to mix sound for performances and live broadcasts. This location gives the mixer perfect view of the stage.
Your thoughts are welcome. |
 This work is in the public domain |
Comments
|
Bad Studio Design -- and Good |
by laws of physics (No verified email address) |
Current rating: 0 01 Oct 2005
|
Wow, I can hardly believe it, but this studio design is even more questionable than the original plan that I saw. Making the WRFU studio basically square, with 90 degree angles, is a rather bad handicap in itself. Adding in all those windows -- which are hard reflective surfaces -- makes the problem worse. The design above would be a great echo chamber, but unless you want WRFU announcers to have a constant echo effect, this is definitely a very problematic design.
Here's one link that is particularly useful in describing the problems that I am concerned about:
http://videoexpert.home.att.net/artic2/238austu.htm
The issue I'm raising is not so much about soundproofing the room, although all those windows make the design above very problematic in itself for that, but about what is referred to as sound conditioing, or controlling the internal acoustics of the room. Quoting from it:
>>>>>>>>>>>
Sound conditioning -
Sound conditioning is the art of quelling reflected sound in a room. You don't want echoes, echoes, echoes in your recordings.
Step one in designing your studio is to be sure that the length, width, and height of your room are not the same or multiples of each other. The worse studio in the world would be 8' x 8' x 8'. A room 8' x 16' x 8' is also troublesome. The reason is that waves bounce back and forth between the walls, ceiling, and floor and combine with each other to strengthen certain frequencies in certain locations. When sound vibrations fortify each other like this, they are called standing waves. The room may have a hollow tone in one place and have strong reverberations in another. Odd sizes such as 8' x 11' x 9' make better sounding rooms.
Another way to thwart standing waves is to build oblique walls. Instead of being orthogonal (90 degree angle between walls) the walls are skewed. The secret to this odd-ball solution lies in how sound waves reflect: like a ball ricocheting off the walls of a corridor, sound can bounce back and forth between parallel walls. If the walls are oblique, the sound, like the ball, gets deflected elsewhere and the sound breaks into random patterns.
A real-world problem with the above plan: Many contractors are unable to build an oblique wall without screwing up the job. If traditional right angle walls is all they know, goodness knows what off-the-wall angles one may end up with. If you are building your own studio and you are as skilled a carpenter as I am, building an oblique wall is easy; making things straight and even is next to impossible.
Although one could conceivably tilt the walls in or outward or tilt the ceiling or floor, this construction may be hard to do and maybe end up looking like the set from "The Cabinet of Dr. Caligary".
You do not have to move the walls much to make an improvement. If you started with an 8'x 10' room and shrank one of the sides down to 9-1/2 feet and another to 7-1/2 feet, that would be enough to scatter the sound.
Next you want to keep the sound from bouncing off the ceiling, floor, and walls to begin with. Carpeting will do a nice job on the floor. Acoustic ceiling tiles will be adequate for the ceiling. You can buy ceiling tiles with more or less acoustic absorption. Generally, the rougher the surface, the more sound absorption you get.
In fact this is how sound absorption works. Vibrations that hit a hard, flat surface bounce back with full force. Vibrations that hit an irregular surface scatter in all directions instead of returning intact with a repeat of the original sound (the true meaning of the word echo). They scatter randomly creating a less obtrusive after-sound (what is technically called reverberation).
If the wall surfaces are even more irregular, such as the eggcrate shapes found in professional acoustic wall treatments, vibrations get trapped in the valleys and never escape. You hear no echo, no reverberation. A truly anechoic is quite unsettling. You feel like you're going deaf. Such perfection is usually unnecessary.
The least expensive irregular wall covering is drapes. Thick, massive, heavy, floor-to-ceiling drapes gathered to create 4" folds will absorb a lot of sound and are inexpensive to install if you shop the sales. Professional studios use fiberglass or foam insulation covered with fabric or chicken wire to do the same thing. Sound passes through the fabric and gets trapped amongst the holes and fibers of the material. Professional sound absorbent materials are available through companies such as Markertek and Acoustical Solutions/Alpha Audio Acoustics (see end of article).
If funds are really tight, you can glue paper egg crates to your walls and they will work pretty well. For safety, you may need to spray them with fireproof paint. Use the crates that are made of paper mache in preference to the foam ones. Don't try to eat all the eggs yourself or your mikes will pick up the sound of your arteries hardening.
You do not have to cover the entire wall with this material to be effective; a third of the surface may do. Feel free to cut and glue the material into artistic shapes and place them like wall hangings hither and tither.
Multiple rooms and internal windows -
Professional sound stages and radio stations that have audio engineers in one room and performers in another need windows between the rooms to facilitate communication. There is nothing magical about windows, a surveillance camera and TV monitor could do the job just as well. Skip Tullen of Tullen Sound Studios in New Jersey, for instance, has a performance studio in the basement of his house and all of the sound mixing equipment in a separate building that once was his garage. Mr. Tullen views his performers through the camera/monitor setup and talks to them through a loudspeaker system. His engineering room has plenty of space for 3001 gadgets without subtracting floor space from the studio.
If you do use internal windows, they should be double or triple paned glass. The windows should be tilted downwards towards the floor so they reflect sound away from the microphones and don't add standing waves.
If you do your own engineering (knob twiddling) you may not need a window at all. You may be doing the voiceovers and operating the recorders and mixing console at the same time. Naturally, you cannot do this in two separate places. Most small operations I have seen, including my own, have superfluous windows leading to idle storage rooms; we built the windows because we thought we needed them. In reality, we do so many of our own voiceovers that we had might as well park ourselves in the same room as our equipment. Even if you are working with one other person, it is easier for you to be in the same room than it is to sequester them elsewhere.
This plan only works if your equipment operates quietly. If your audio recorder sounds like a lawnmower, it obviously cannot share the same space with your microphone. One solution may be to move the noisy, motor-driven equipment to another room and operate it by remote control. Now all you need is quiet buttons. Audio feedback is seldom a problem because most people record with headphones instead of speakers in the room anyway. Once the recording is finished, you may listen to the result over speakers to judge ambiance and sound quality. Beware that you may be using $400 monitor speakers while your audience is listening to $2 monaural speakers in plastic TV sets. You may want to check your sound under these conditions before it leaves your shop.
Enough sound advice. Some final quotes seem fitting:
Knowledge is the small part of ignorance that we arrange and classify --- Ambrose Bierce
A man learns to skate by staggering about making a fool of himself; indeed, he progresses in all things by making a fool of himself --- George Bernard Shaw
<<<<<<<<<<<<<<<<<<
Here are some other useful basic looks at the art and science of sound in relationship to studio design.
http://www.computersandmusic.com/link_studio.aspx
http://arts.ucsc.edu/EMS/Music/tech_background/TE-14/teces_14.html
http://www.soundonsound.com/sos/feb98/articles/soundproofing.html
Finally, there is no scale on the drawing above, but from having taken the tour of the backspace in May after the building was first purchased, I would estimate that the total space of these three rooms to be used for media production is somewhere in the area of 300 to 400 SF. This is out of a (just recalling here, so I may be a little off) a total area in the building of 30,000 SF.
I'm a long-time financial supporter of the IMC, but it seems more than a little odd that only about 1% of the building is devoted to media production. I've been looking forward to the new performance space opening, but I also think there needs to be more balance between that and the need for increasing media production space. After all, none of those rooms as proposed is even as big as the production room at the old IMC space. We all know how hot and cramped that was, as well as the conflicts it created when more than one person was using it at a time. I was expecting more with the new building, so I hope that the total space to be devoted is somehow increased from this meager offering, to say the least. |
|
Re: RFU and Media Production Space Proposal |
by Doug Hoepker doughoepker (nospam) yahoo.com (unverified) |
Current rating: 0 01 Oct 2005
|
If the IMC agrees to chip in the money to purchase a new board, and if the soundproof window on the east wall is feasible, then I have only one concern. There's no need to have a window on both the south wall and the east wall. If the idea is to have a window that grants the public a view inside the station, that can be achieved via one window OR the other. But two windows is excess. It's my understanding that a wall is better than a window in terms of soundproofing -- if only by a slight margin, which I'm not certain of -- so why open up additional concerns/expenses by having a second window to the public?
Other than that concern, IF the above conditions are met, then I say move forward. |
|
Response to the Concerns so far |
by Danielle (No verified email address) |
Current rating: 0 01 Oct 2005
|
Responses to concerns:
Concern #1: design is square and will cause reverberations.
Response: True, but is a new wall worth the cost? To slant the wall as per the orginal architect's design (http://www.ucimc.org/newswire/display/95001/index.php) costs more than the above, which just extends and sound proofs an exsiting wall. I would guess the difference is a few thousand dollars for a new sound proof wall.
I am not opposed to going with the original design if someone can give a compelling argument that:
a) the echo will be *significant*
b) there is no other way to prevent the echo such as egg shells etc than building a completely new wall.
If these conditions are met and we decide that we would rather spend 1-4K on a wall than equipment, I think a slanted wall will not compromise production room space. I think RFU should share the cost of any specialty requests - I am not sure if this qualifies, but I do want RFU to really share the weighty feeling of the cost difference.
Concern #2: windows are expensive and echo-y.
Response: The *only* reason to place RFU at this location (instead of the basement, for example) is to place it in a visible location for the public. RFU is the 24/7 "front face" of media production at the IMC. This will help with outreach, fundraising, and getting under represented voices to feel the confidence that they too can be on the air - seeing is believing. So either there should be adequate windows or this is the wrong location.
If there is only a window on the west side, the corridor into the IMC becomes dark and enclosed. We need to avoid the feeling for the public that they are entering a "private club" like the Knights of Pythia. Architecture says a lot. Windows show openness and welcome. Just look at how different WEFT feels from the street with its new storefront windows.
According to Petridish & Andy at prometheus, windows can be built to be quite suffciently sound proof. Andy sent specs we can use.
I think the larger question is are we going to prioritize quality of sound over a welcoming face to the public. As I understand it, the *community* should not be second to the *radio* in "community radio."
Concern #3: We are not planning for enough media production space.
Response: Agreed! What we are up against are cost. This design is *minimal* b/c we are *out of cash* - everything is debt at this point.
For now, we can have plenty of additional media production space in the basement. What I hope we can do in the future is expand RFU into the production room and build another production space for print/video etc. This will costs many thousands we don't have right now. But we can move in that direction as we fundraise into the future. |
|
Re: Windows/Community |
by Doug Hoepker (No verified email address) |
Current rating: 0 01 Oct 2005
|
"So either there should be adequate windows or this is the wrong location." -Danielle
If the point is to allow people to see into the studio, ONE LARGE WINDOW will do the trick. This is common sense. So, if the concern is for the corridor looking to private, then place the window in the corridor. Personally, I don't think this is a big deal. I doubt if someone has to walk 20 feet without a window they will think that we're a bunch of snobs.
"I think the larger question is are we going to prioritize quality of sound over a welcoming face to the public. As I understand it, the *community* is more important than the *radio* in "community radio." -Danielle
I couldn't disagree more. The point is to have a community radio station that the community WANTS to listen to. No one is going to want to listen to a radio station if it sounds poor, whether that poorness comes from programming that lacks liveliness or is non-diverse, the quality of the signal, or the echo chamber that people here every time the mic is on. |
|
Re: RFU and Media Production Space Proposal |
by chris evans (No verified email address) |
Current rating: 0 01 Oct 2005
|
Danielle,
Is one window along the south corridor enough public visibility for the station? Must it be two windows for the Post Office-ing public to look through?
A squared room......what sound proofings within a squared room can offset the lack of angles? |
|
Re: RFU and Media Production Space Proposal |
by chris evans (No verified email address) |
Current rating: 0 01 Oct 2005
|
To echo, oops...to further illustrate Doug's point about sound quality, I give you WBCP, 1580 AM. Great station, wish I could listen to it. But I can't....the sound quality is too poor. In BCP's case, their signal is too weak and is too easily subject to interference. Sound quality is an important component to the community wanting to listen and participate. WEFT would not be the great grand daddy if it sounded crummy all the time.
Doug or Laws of Physics, do you see anyway the squared plan can be kept, and still keep echos and reverbs down to a minimum?
By the way, does the Bill Taylor Monster Board fit in the squared plan? |
|
Re: RFU and Media Production Space Proposal |
by La Ley (No verified email address) |
Current rating: 0 01 Oct 2005
|
|
When RFU asks for more space, Danielle offers less. When RFU asks for angled walls for soundproofing, Danielle offers squared off walls. RFU wants fewer windows, Danielle wants more. Danielle, when are you going to listen to what people are saying to you? If you're going to give RFU square walls against their will to save the IMC some bucks, why don't you just give the money saved to RFU to buy the smaller board instead of offering a loan? Personally, I'm getting sick of it. The barnraising is supposed to be about building a radio station. Let's build a radio station. |
|
Re: RFU and Media Production Space Proposal |
by Doug Hoepker (No verified email address) |
Current rating: 0 01 Oct 2005
|
Chris,
In the squared plan, we'd have to do everything we can inside the room to combat the room's design. We could probably accomplish this, as I think others would agree, to get it to a usable level of interference ... but it will take a lot of effort in terms of soundproofing materials on the carpet, walls, and ceiling. Walls are a big deal, and unfortunately, that means we might have to give up some shelving along the walls for deadening devices. Not crazy about that, but... |
|
Re: RFU and Media Production Space Proposal |
by Doug Hoepker (No verified email address) |
Current rating: 0 01 Oct 2005
|
|
Forgot to answer your other question... NO I don't see a way that the big board fits in that room, and we still have enough room for guests. Not without some very creative design in terms of the storage of additional equipment. |
|
Re: RFU and Media Production Space Proposal |
by Andrew Ó Baoill andrew (nospam) funferal.org (unverified) |
Current rating: 0 01 Oct 2005
|
1 I know it's merely suggestive, but I don't like the image of four chairs sitting facing the board. If you have guests you want them to be able to face each other. You want them to be able to place papers on a table. This may be possible in this design, but it's unclear.
2 The L-shape, with the board angled in the corner is interesting. This is essentially what WEFT has. I personally prefer a U-shape, as the outer part of the fan has a lot of wasted space, and not all the equipment is equally 'reachable' but I'm willing to be persuaded on this.
3 I'm not sure how useful the storage space in the lower right will be, but then irregular corners are perhaps more useful for storage than for anything else.
4 I'm reasonably happy with the pre-production idea, especially the connecting window. Can we ensure we leave ducting for a cable-run from the pre-production to the studio?
5 Speaking of that window, the window to the south side of the pre-production space serves no purpose I can see - it looks in on a storage area in the studio. The one looking at the main desk, as I say, is a good idea. Note, though, that this should be a new, double-paned, angled, window (as outlined by 'laws of physics') rather than a repurposing of the existing windows.
6 Bill donated the large board for WRFU use. If he's OK with the plan for a smaller board, with the large one being used for live shows that's OK by me.
7 Will print happily co-exist with the IMC staffing area?
8 The 'balcony' plan for the big board presumes that the mezzanine (sp?) plan will be completed.
9 If the move to a smaller desk saves the IMC more than the purchase price of that desk, might the IMC as a whole be willing to subvent some of the cost of the desk, other than through a loan?
10 I'm not sure that the plan for shelving near the door leaves sufficient space for wheelchair access. I realise the diagram is suggestive rather than necessarily to scale, but it's something to be aware of.
Hope this all helps. |
|
Re: RFU and Media Production Space Proposal |
by Andrew Ó Baoill andrew (nospam) funferal.org (unverified) |
Current rating: 0 01 Oct 2005
|
I started drafting my earlier comments before many of the other comments had come in, so did not respond to them.
Regarding perpendicular/parallel walls, we can deal with this, but probably only by taking several inches - perhaps 6-9 - within the room to build on anti-echo surfaces. My thought is that we may need to do some of this anyhow.
I'm sorry, I'd kept somewhat out of this process, but I had presumed that wall-surfacing (to combat echo) was being addressed, in addition to thickness (to combat sound leaks) but it appears that this may not be the case.
I should also note that the amount of soundproofing needed (to combat inbound sound leaks) will depend on the dB level immediately outside the walls. In other words, how loud will the Shows equipment be? Will their speakers be angled to take account of our location? Have our architects/plan-makers taken account of these issues in determining the required wall thickness and composition? If you have 100dB blasting directly at the glass-fronted spaces, multiple windows won't necessarily make much difference.
Oh, which reminds me. Ground vibrations. In my old station, we were situated about 40 yards from a generator which sat on the same concrete surface as our studio. The sound from the vibrations induced in the concrete - separate from the actual _sound_ from the generator - caused unacceptable problems for us (we eventually had the University put the generator up on rubber pads). It's possible that this form of issue may arise here, from speakers, or from hundreds of punk kids jumping in tandem..... ;-)
Unfortunately, I'm not necessarily an expert in finding solutions for these issues, just for identifying as many problems as possible! |
|
Alternative RFU Studio Proposal |
by ML (No verified email address) |
Current rating: 0 02 Oct 2005
|
This is what I propose to resolve the issues raised by the need to construct an appropriate studio for RFU.
1. That RFU consult with Bill Taylor about whether he is OK with RFU shifting use of the donated board to the IMC Shows group for their use. If this transfer is acceptable to Bill, then Shows would need to be approached to see if they are interested in the big board, suitably made operational for Shows use during the barnraising, in exchange for their sharing half the cost of a more appropriately-sized, broadcast-quality board for use as the primary RFU sound board. Shows as been working toward buying a new board and may already have saved part of their half of the cost of the board needed by RFU. RFU will require a loan from IMC general funds to cover its half of the new board’s cost and Shows may need a loan from IMC general funds to finance whatever part of their half of the new RFU board that they cannot cover at this time. If Shows is not willing to accommodate this switch for whatever reason, then the IMC will pick up half the cost of a suitable and appropriate new board and RFU will pay the other half of the cost, in order to fit in the space selected for use by the RFU studio. This use of IMC general funds would need to be approved by Steering. The big board will then either be returned to Bill or otherwise disposed of in accordance with his wishes.
2. That the layout of the original slanted northeast wall in the original studio proposal be partially reinstated, so that it may be altered to run its course, still at an angle, to both simplify construction and increase it sound reflective characteristics. Preferably, this angle will start at the southeast corner of the vault wall, eliminating the short perpendicular wall that ran south in the original plan, which is problematic for reflecting sound. The wall in the southeast corner of the studio space would preferably run at an angle to the northeast to intersect the angled wall running toward the southeast from the corner of the vault wall. These revisions that eliminate perpendicular walls on the east side of the studio will further reduce the sound transfer from the performance area. This will also retain the south entrance door to the proposed production room, where the angled studio walls will meet the west side of this door frame, however, production may choose to eliminate this door and replace it as is found acceptable to increase usable space in the production room. Now that further research has been done, it appears that the architect was at least cognizant of some of the sound control issues with the shape of the studio that have been completely ignored the latest revision of the original plan.
3. That these angled east walls, which divide the proposed RFU studio from the proposed production room, incorporate a window, of suitable double-paned, sound-reducing construction, no bigger than needed so that future needs for production can be coordinated between the two rooms. This window should be no more than two feet by three feet to minimize the reflective surface it presents. There will be no window in the short wall that faces the performance area.
4. That there be just one other window in the studio, other than the window to the production room mentioned in point two above, on either the west or south walls, of suitable double-paned, sound-reducing construction.
5. That the door from the northwest stairwell be the only entrance to the studio, with its lockset replaced with lever style handles.
6. The existing glass walls in the space to be used for the RFU studio will be completely removed and recycled for use elsewhere in the building, as appropriate. Except for the existing wall shared with the vault on the north around to the studio entrance door, studio walls will be of new, sound-reducing isolated double stud construction, except for the existing structural columns. This will include replacing the existing door into the former postmaster's office with a soundproof wall of the same construction as the rest of the new studio walls. RFU will pay for the costs of this construction that exceed typical single stud non-isolated wall construction, again through a loan from IMC general funds. |
|
Sound booth size and shape less important than microphones and signal quality |
by Paul Kotheimer herringb (nospam) prairienet.org (unverified) |
Current rating: 0 02 Oct 2005
|
When designing an isolation booth for radio broadcast, the size and shape of the room impact received signal quality far less than the quality of the microphones and the quality of the signal path.
Yes, you want sufficient reduction of outside noises, hence sound-proofing--BUT, to be honest, if you have a lap-top or an HVAC exhaust fan in the room with your voiceover microphone, then the hard-drive of the laptop or the fan of the HVAC is going to be producing noise levels above those of the voices, footsteps, and traffic sounds coming in from outside the isolation booth.
As far as "echoes, echoes, echoes" are concerned, the effect of the room shape on the sound you'll hear over the air will be effectively zero as long as the DJ uses standard radio-broadcast microphone technique: Keep your mouth less than 1 inch away from the grille of the microphone and speak in a normal, conversational tone, and room reflections will be INAUDIBLE over the air.
If WRFU were trying to build a recording studio which will make a string quartet sound brilliant, then, yes, "laws of physics" would have valid concerns. But I presume WRFU is not interested in live broadcasts of chamber music--at least not from its DJ booth.
My advice is to disregard the concerns raised about room reflections and standing waves when evaluating the WRFU DJ booth design.
One valid concern about this proposal would be the cost per square foot of soundproof glass. I should hope that someone involved in the process has a price quote handy. |
|
Re: RFU and Media Production Space Proposal |
by Doug Hoepker (No verified email address) |
Current rating: 0 02 Oct 2005
|
Paul,
Thanks for the input. The problem is that we're not dealing with normal sound created by foot traffic, we're talking about bands performing in the neighboring performane space. That's why soundproofing is crucial. The noise created by concerts will be substantial. |
|
No Change in My Advice |
by Paul Kotheimer herringb (nospam) prairienet.org (unverified) |
Current rating: 0 02 Oct 2005
|
Thanks for the context, Doug, but the detail you provide does not change my advice. You'll notice that the scope of my advice was limited to whether to accept or reject the design's ROOM SHAPE and WALL MATERIALS based on considerations of sound reflectivity.
If you want my advice as to what WRFU should do when a concert is in progress in the adjoining room, then my advice would be pretty simple: Broadcast the concert. |
|
Re: RFU and Media Production Space Proposal |
by Andrew Ó Baoill andrew (nospam) funferal.org (unverified) |
Current rating: 0 02 Oct 2005
|
Paul,
Yes, if we were planning to broadcast every event happening in the performance space, without any commentary or voice-over, there wouldn't be a problem with the noise levels reaching the studio. Actually, we technically wouldn't need a studio, as we could just feed the live desk straight into the transmitter. However, we've already determined that that isn't what's going to happen - for a variety of reasons - so soundproofing is an important concern for us.
Regarding reflections and echoes, I appreciate your notes regarding the primary role of good technique. However, it needs to be realized that our broadcasters will be amateurs with various skill levels - and also, of course, we presume we will have many guests from the local community - so we should make the starting situation as useful as possible for them, rather than putting all the weight on 'proper' technique. I'd also note taht the preferred distance from mouth to microphone differs, to some extent, by microphone type, so almost eating the mic is not always the best approach.
Personally, I'd be more concerned about wall materials than room shape, as the right materials/surface will tend to scatter the sound anyhow, while I'd still have concerns in an oblique-walled room with highly-reflective walls. Others may have different opinions, or more detailed technical experience. |
|
I propose Mike's recent proposal + one clarification and one reversion. |
by Danielle (No verified email address) |
Current rating: 0 02 Oct 2005
|
I think we are really close to something to bring to RFU on Tuesday and Space on Wednesday. Thanks to those who provided constructive feedback.
I think Mike's revised proposal is good and resolves my financial concerns. I propose that we go with it with one clarification and one reversion to RFU's original proposal:
1) We build the angled wall in such a way that we can fit a radio pre-production workstation on the other side. We can ask the architect to draw it for us.
2) We go back to the originally consensed upon RFU decision about windows with the change that the east window into the production room be smaller (2x3 is what Mike proposes) and the west side window cover the current width of the boxes but no more than 5 feet.
from the 9/27 e-mail about RFUs space proposal:
"We would like to have the following windows from the air studio:
-West wall facing the lobby
-South wall facing the hallway/entrance to the live rooom
-The newly created (above) angled SE wall of the studio.
Each of these windows should start at approx 36 inches from the floor and extend 4 feet up, or so. They should be approx 4 feet wide"
I went to the IMC today to consider the ideas posted about removing this window from the design. I think it is a bad idea and will make the corridor into the IMC seem dark and enclosed. A window of the size proposed by RFU in this location - pushed all the way to the west - leaves several feet of wall space for storage on that side. This gives RFU very similar window space as WEFT - not too much, not too little.
I offered many weeks ago to pay for windowage in this location and the offer still stands, so it need not add to RFUs debt burden.
Remaining concerns? |
|
Clarification |
by ML (No verified email address) |
Current rating: 0 02 Oct 2005
|
Danielle,
I wanted to note that I believe the RFU email you are quoting from is one from meeting notes that mistakingly included windows on the south and west sides in a compilation of various reveisions. RFU never did consense to windows in both the west and south walls at any point.
As I recall, this was a mistake in the notes where what was meant was the window to the southeast into the performance space (now irrelevant), which is different than the uncorrected notes that you've quoted. In fact, I made a correction on that particular point in an off-list email, noting that we had consensed that windows in both the west and south walls were problematic and should be avoided.
This is because these walls form a 90 degree angle, producing the sound reflections we are trying to avoid. Specifically, what is wanted is that no window in the space be at a right angle to another one. That is why we find two windows, one in _either_ the west _or_ the south walls, plus one in an angled wall, acceptable, but why windows in both the south and west walls are not acceptable.
My own preference is for a window in the south wall, because that is the one in the hall, where 95%+ of the people visiting the space will notice it. Having another window in the west wall, in addition to being a problematic design feature, is an additional cost that is really unnecessary and takes up valuable storage space in a still rather cramped room. Besides, the outside of this west wall in the lobby could be utilized for a posting area, building directory, or other use. It also buffers outside noises, which will tend to come through from the west lobby windows otherwise.
As for the elimination of the west window making it dark in the hall, RFU will be 24/7, so there will always be lights on in there. Alternatively, lighting in the hall can be adjusted to satisfy your concerns. Both of these avoid the problems a third window will cause in the studio itself. |
|
Re: RFU and Media Production Space Proposal |
by sandra (No verified email address) |
Current rating: 0 02 Oct 2005
|
ML wrote:
1. That RFU consult with Bill Taylor about whether he is OK with RFU shifting use of the donated board to the IMC Shows group for their use. If this transfer is acceptable to Bill, then Shows would need to be approached to see if they are interested in the big board, suitably made operational for Shows use during the barnraising, in exchange for their sharing half the cost of a more appropriately-sized, broadcast-quality board for use as the primary RFU sound board. Shows as been working toward buying a new board and may already have saved part of their half of the cost of the board needed by RFU. RFU will require a loan from IMC general funds to cover its half of the new board’s cost and Shows may need a loan from IMC general funds to finance whatever part of their half of the new RFU board that they cannot cover at this time. If Shows is not willing to accommodate this switch for whatever reason, then the IMC will pick up half the cost of a suitable and appropriate new board and RFU will pay the other half of the cost, in order to fit in the space selected for use by the RFU studio. This use of IMC general funds would need to be approved by Steering.
Why would the IMC general funds pay for a new board? I believe, equipment for a working group should be from funds raised by that working group. I would not count on anything other than that being agreed upon.
S |
|
Re: RFU and Media Production Space Proposal |
by amazed (No verified email address) |
Current rating: 0 03 Oct 2005
|
|
And you people are going to change the world? Change yourselves first. Squabbling like children. |
|
Issues: outreach & funding |
by Sascha (No verified email address) |
Current rating: 0 03 Oct 2005
|
Hi all,
I've been out of state most of the past month and, alas, will be out of town this week also; but I wanted to send in my own thoughts and opinions about the WRFU studio. I've noticed that there's a wee bit of tension about these issues of late, so wanted to mention in advance that I'm not meaning to throw oil on any fires or ruffle any feathers -- just hope to help move things towards resolution.
My main concerns are funding and day-to-day outreach -- both of which I think we need to be relatively pragmatic about. I'm not talking about cutting corners, but rather to think in phases. Some folks have offered to pay for specific improvements (which is awesome); but that still leaves a lot of improvements unpaid for. As you all know, both our budget and timeline is excruciatingly tight on the entire space division project -- while I appreciate the concerns folks have raise (especially concerning sound and wall angles), I think Paul's remarks are right on the money about the actual impact of these studio facets -- for example, both WEFT (the back studio) and WILL have studio spaces with perpendicular walls -- I doubt very much that squared walls would have any
noticeable effect on sound quality. Other ambient noise generators (especially computers, HVAC, etc.) will cause far more disturbance. Having seen a number of different set-ups, and heard from several experts, I think we're worrying about
a relatively insignificant problem when compared to other potential sound issues.
In terms of outreach, I really think that the views from the lobby are a key element of the studio -- when the original IMC production room was built, we maximized the viewability of the room purposefully because we understood the utility of that facet of the design (one wall was almost floor-to-ceiling
windows). But it was highly effective as a space that was immediately accessible/viewable to anyone who walked by. I would recommend we follow this precedent and make the studio as viewable as possible to the main lobby area. I think that more windows = better -- and given the information and input from Prometheus folks like Andy Gunn (who clearly knows this stuff like the back of his hand), I see no reason why we shouldn't maximize the public viewability of the studio (but check out pages 9-12 of the documents Andy sent for pointers on this). If folks who are experts in designing LPFM/Community Radio studios are telling us that we can build windows, I say we build windows!
Anyway, I hope I haven't stepped on any toes (those who know me know that's not my intention) -- and I'm happy to head out for beers and further debate when I get back to town next week (yes, I will actually be in town for almost a full
week before I head out again ;). Everyone's been doing an absolutely fantastic job of things and it's really inspiring to be seeing everything coming together on a shoe-string budget and insane timeline -- keep up the awesome work.
In solidarity,
--Sascha |
|
Re: RFU and Media Production Space Proposal |
by chris evans (No verified email address) |
Current rating: 0 04 Oct 2005
|
Sascha says:
" But it was highly effective as a space that was immediately accessible/viewable to anyone who walked by. I would recommend we follow this precedent and make the studio as viewable as possible to the main lobby area."
Please be advised: viewable is okay. Accessible "to anyone who walk[s] by." is not. You do not want anyone who walks by to have access to a live radio station. You will jeopardize the license of WRFU and expose an airshifter to an angry nut case.
I was in that movie at the lobbies of WDWS. An angry caller never could get Turpin to talk about what he wanted Turpin to talk about. Whether or not his complaint had merit was not an issue, (his complaint was probably legitimate, I don't remember) What he could not do, nor should listeners of WRFU be able to do either, is demand to be allowed to go on the air immediately.
This is not meant to be testy- this is strictly advice for the benefit of the radio station and the Urbana-Champaign Independent Media Center. |
|
Three east wall options to view and window comment |
by Danielle (No verified email address) |
Current rating: 0 04 Oct 2005
Modified: 01:55:42 AM |
Doug asked me to mock up the slanted wall concept. IMHO, I think 2 & 3 are more expensive & create awkward & unused space, but if folks are bent on slanted walls (har har), I stand aside and let others decide.
1) My original proposal: no slanty wall
Click on image for a larger version 
2) The architects proposal: partial slanted wall
Click on image for a larger version 
3) Mike's proposal: full slanted wall
Click on image for a larger version 
Re: windows, as you can see in the diagram, windows make up a small fraction of the total wall space. There are not more windows here than WEFT or WILL. Prometheus has provided info for how to build soundproof windows effectively. They have seen this proposal and do not have concerns this % of windows.
I feel strongly that the "front face" entity of the IMC should have a window to the lobby and entrance hall.
I propose we move forward with whichever RFU chooses as a group - #1, 2, or 3.
Responding to Sandra's concern about the IMC as a whole buying RFU a mixing board, the proposal is that the IMC *loan* RFU the money for a mixing board minus the $500 pledge so far. I support this idea.
I think RFU's energies should be focused on how to keep the ceilings and HVAC from causing sound trouble. Based on my experiences in the old IMC space and at WEFT, this issue causes me greater concern and it is being overshadowed by the wall/window debate. |
|
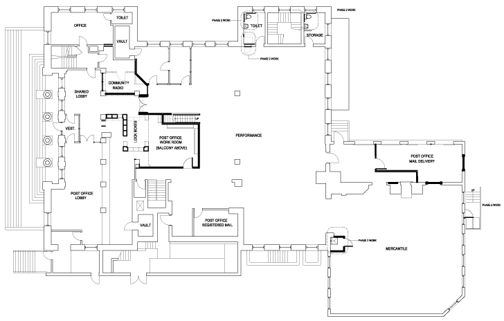
Latest architect drawings |
by Danielle (No verified email address) |
Current rating: 0 04 Oct 2005
|
Click on image for a larger version
 |
|
Here is the latest layout. The architect has not altered RFU b/c he is waiting on a final decision. The final layout will be approved at the space meeting Wednesday at 8 PM. |
|
Disclaimer and New Alternative Proposal |
by ML (No verified email address) |
Current rating: 0 04 Oct 2005
|
Sorry, but while the plan labeled above as "Mike's proposal" incorporates a feature or two of what WRFU suggested, it also completely ignores other concerns that WRFU has raised. So I find the label to be misleading and disingenuous. It is merely another example of Danielle's original design that illustrates a stubborn refusal to engage in real consensus process.
In fact, if WRFU merely is to act as a rubber stamp on her design, then why bother asking about our concerns and needs in the first place if they will simply be ignored? Again, this isn't consensus, it's a hierarchal process that presumes some special expertise that knows better than those who will have to use the studio on a daily basis and that WRFU should defer to it.
I know that several red herrings about cost have been repeatedly tossed on the table. I think it is important to point out that the stairway to the mezzanine, incorporated in the latest revision, probably comes close in itself to equaling the entire cost of the WRFU studio (NOT just the added costs that may exceed its construction as standard office space.) If money is really an issue, then why that stairway?
Since my alternative proposal incorporating WRFU's concerns was largely ignored -- like most of the concerns that WRFU has raised -- I think it is time to cut costs in an even more dramatic way. There are several locations in the basement that could be very inexpensively converted into studio space. This will free up space on the first floor and allow WRFU to construct studio space free of the constraints of being window-dressing in someone else's vision of what the IMC should look like. |
|
Response to Mike: Clarification of my position. |
by Danielle (No verified email address) |
Current rating: 0 04 Oct 2005
|
The only difference between Mike's proposal and the full slanted wall proposal (#3) I posted above is a single window on the south side. I accept EVERY other piece of his proposal.
I am not staying with my initial proposal nor have I disregarded RFU concerns. Instead I have followed the consensus process, instead of stooping to insults, to work towards a solution.
Since my initial proposal I have been convinced to:
- remove the door on the east side
- slant the wall on the east side
- add a sound barrier on the north side against larry silkwood's office
- make the window on the south side half the span of the wall
I consider Mike's proposal to move into the basement sour grapes and NOT in the best interests of the organization as a whole. RFU's ability to reach out to the community and raise funds will be greatly compromised by this move - a move simply over one window. |
|
Just for The Record |
by ML (No verified email address) |
Current rating: 0 04 Oct 2005
|
On these points:
>- remove the door on the east side
This actually should have been off the table BEFORE last week's RFU meeting, when I discussed with you RFU tech group's concerns about the plan. Then you chose to throw it back on the table to use as a bargaining chip at the RFU meeting. This is not what I consider to be either collegial or consensus driven behavior. It does make a damn fine negotiating tactic, though, but I expect better from those engaged in a consensus-driven process.
- slant the wall on the east side
This wall was slanted in the original proposal from the architect. I just suggested that we get back to that, minus some extra angles that will make it more expensive to construct. Again, the square-sided intrusion intrusion added and illustrated above seems more like a negotiating tactic than the result of a consensus-based process.
- add a sound barrier on the north side against larry silkwood's office
That''s fine. I already gave you credit for that. But it is still unclear is the east wall will really be soundproof or not. You don't mention that here. Can we assume that will also be on the table tonight, to be used later by you as another bargaining chip? It's clear that this wall being soundproof is a necessity and shouldn't be a demeaned to the status of a bargaining chip.
- make the window on the south side half the span of the wall
Nobody at RFU has had any concerns about the size of either a west _or_a south window, EVER. As has been REPEATEDLY expressed by numerous members of RFU -- not just me, as you always seem to imply when an RFU concern is brought up -- there are legitimate concerns about both storage space AND sound control with a third window.
However, if you're OK with us eventually building storage space up against one of those walls when we get to the point of needing it -- without future objection, of course -- then we might re-examine the issue. We can always throw blankets over the extra window is the studio turns out to be too "live" if the IMC does end up making a mistake by conceding to your vision of multiple media storefronts in the IMC space.
BTW, the basement idea is NOT sour grapes. It turns on the issue that Sascha raised -- maybe we do need to really consider this as a phased plan.
And if cost is REALLY the concern driving your holding your veto over our concerns -- not including the whole window issue, which, BTW, ALWAYS costs more than building a wall without one, no matter who is paying for it -- then that will allow us to build a studio more cheaply and the window issue will largely go away because you can put your third window into an expanded and truly _adequate_ production space on the first floor to better serve all working groups.
Later, when we've had the time to truly conduct an inclusive and unrushed consensus process, as well as figure out what db levels exist in what you've penciled into this plan as RFU space, we can accurately consider the costs and benefits of having WRFU on the first floor. Since there is no current need to produce shows from the WRFU studio, there seems to be no urgent need for WRFU to be there. We can always pipe a signal from the Shows board downstairs in the meantime if that capability becomes necessary.
But that all sounds like it will cost a bunch of money and one of the central concepts of WRFU, as I have repeatedly and publicly stated over the last three years, is to build and operate WRFU on a shoestring, so that its benefits to the other IMC working groups and the community do NOT become a financial drain on the fundraising of either the IMC as a whole or other community-supported media. I get the initimation from certain quarters that we should view WRFU as a "profit-center." I can only speak for myself, but this would makes WRFU into exactly the opposite of what we've always conceived it should be -- 168 hours more a week of community radio at minimal financial impact.
I really would prefer to be on the first floor. But to avoid further conflict, moving WRFU to the basement is looking more and more like it is far likelier to achieve consensus than a plan that is 90% your personal vision of the IMC space. That's not an insult -- it's a fact. |
|
Re: RFU and Media Production Space Proposal |
by still amazed (No verified email address) |
Current rating: 0 04 Oct 2005
|
|
Looks like it's a long, long way to the revolution. |
|
Please Adjust Your Set |
by Dose of Reality (No verified email address) |
Current rating: 0 04 Oct 2005
|
Dear amazed,
Sure, consensus can be a little messy.
If you were expecting secret government that only tells the public what it wants them to believe, then you'll want to readjust your set to Faux News. You're sure to get a belly-full -- or make that a diaper-full -- there. |
|
Re: RFU and Media Production Space Proposal |
by amazed (No verified email address) |
Current rating: 0 04 Oct 2005
|
|
Dose -- thanks so much for the wisdom. It doesn't bother me that consensus gets messy. It amazes me that people who act like children expect to be taken seriously. |
|
Oh, I Get it Now |
by Dose of Reality (No verified email address) |
Current rating: 0 04 Oct 2005
|
OK, I get it now, amazed.
You're referring to your own behavior, expressed in juvenile, posting trolling one-liners.
BTW, keep acting like that and people will begin thinking you're JR. But the editors may let it slide for awhile if it's so clear you're only talking about yourself. |
|
Re: RFU and Media Production Space Proposal |
by amazed (No verified email address) |
Current rating: 0 04 Oct 2005
|
|
Dose -- glad to see you're taking to heart the notion of not acting like a child. Buzz off, little one. |
|
A modest proposal |
by Donovan (No verified email address) |
Current rating: 0 04 Oct 2005
|
 |
I'm truly sorry that I can't be at the meeting tonite, as I have a lot of strong feelings on this issue, yet am still quite open to hearing reasoned arguments about other folks' feelings. In the absence of my own flesh and blood attendance tonite, I'm gonna outline a few things that I think should be taken into account in the discussion.
1. Based on the discussions here and the HEATED debates at the walk-thru of the PO building last week, I fear that RFU is getting a reputation (undeserved) of wanting more than their fair share of space vis-à -vis other parts of the IMC, such as print and video production. This may be true, but running a radio station, in fact, takes space – broadcast equipment, the board, storage for CD’s and other accessory items, space for (multiple) guests, etc. in addition to concerns about wheelchair access, security, and other non-trivial issues that make this a thorny planning problem. If we want RFU to have more space than some people think we deserve, then they are entitled to that opinion, but I think I speak for most of the RFU contingent when I say that we just want a radio station that will be able to handle and facilitate all of the things we want it to be able to do, and I will say again, at the risk of sounding like a broken record, that my personal opinion is that if we build a tiny, cramped, inconvenient facility that’s incapable of hosting panel discussions for talk shows, live acoustic music sessions, or whatever, then we are idiots, because this building has more space than we know what to do with at this point.
2. However, there is an argument – a valid one, I agree – that the visibility of a radio station would be a
great tool in encouraging community interaction and putting a public face on the IMC. Likewise, having print, video production, etc on the first floor would be nice, so that they have some visibility. I will continue to argue, however, that having any of these uses (radio station, print prod, video prod) may in
fact become HIGHLY undesirable to users when a concert is going on in the main room and there is work being done. All of the walls adjoining the performance space, not just the IMC, need to be well soundproofed or I suspect that everyone will be begging to move to the basement after the first event in the performance space. In some ways I question why any of the outreach uses (radio, video, print) even want to be on the first floor.
3. I see a few options, including moving RFU or production, or both, to the basement, cutting out some of the performance space for other uses, or dealing with what we have. In all cases, compromises will have to be made and hard choices debated: space vs. visibility, access vs. quiet working conditions, etc. Someone has got to be willing to compromise here, or consensus is a fleeting dream.
4. Concerning the size and space of the RFU studio. I agree that we should spend as frugally as possible. I agree that public visibility has benefits. I agree that angled walls and fewer windows will create a better sounding studio. I agree that angled walls cost more. I agree that windows cost more. I agree that we want and can use a lot of space. I agree that other stations make do with much less space. I agree that if we continue to not be able to reach some agreement that we should seriously think about moving one or more of the proposed first floor uses to the basement. Guess what? All of these things are not going to come to fruition because some of them contradict each other. But all of them are valid arguments, and it’s perfectly reasonable that RFU would want a lot of space, and that we should save money, and that we should build the best studio we can now so that we don’t have to spend more money later, etc etc. So what do we do? Something has to give.
5. At this point I’m gonna propose the following new scheme. I’m tired of the debate and I don’t care where the windows are or how many there are, even though I think that having windows on both the west and south walls of the studio is overkill and I don’t think that the entry hall (aka south wall of the studio) will feel intimidating without windows on it. I have re-read every post, every rationale, looked at every proposed design, and visited the space last week. My plan below, I think, requires very little demolition, preserving as many of the existing partition walls and doors as possible. It requires construction of just a couple new walls, at 90 degree angles. It takes a few feet away from the performance space, which I think is reasonable, given its size and shape. It gives production more room than they were originally allotted and gives RFU more room as well, plus access to the vault for music storage. There may be some doors or walls that need to move or windows that need to be added (this design is more conceptual than complete). I’m not trying to throw a wrench in the system, but I feel like this is a design that addresses just about every concern that has been raised (expect the west and south windows) by RFU and production, and creates a pretty good radio facility with minimal demolition and new construction.
I wish you all the best of luck tonite.
donovan |
|
Several Basement Options |
by ML (No verified email address) |
Current rating: 0 04 Oct 2005
|
Hi Phil,
The basement room under the frontsteps is one option. But it is also the largest meeting room in the basement. The more I've thought about it, the more I'd like to leave it, as this will be very useful for smaller meetings. We'd only need a part of it, so it's best left intact.
Another good option is the old mens' locker room. Now that the PO no longer needs this space, it is big enough to build to build the RFU studio and another part-time general production room that could double as the studio lobby. Plus, there would be much less need for added soundproofing there for obvious reasons.
And there are other places in the basement that are within the realm of possibility. I think WRFU has been very flexible through this process. We don't have any grand vision we're defending, only trying to balance our requirements against the rest of the many issues involved in best utilizing the IMC space for everyone. Nothing we've proposed is so set that it couldn't fit, just that it doesn't fit a specific plan that we see as problematic. |
|
Whoops |
by Donovan (No verified email address) |
Current rating: 0 04 Oct 2005
|
 |
|
Sorry, didn't realize I had saved that file as a jpg. Here is the proposed plan again, this time readable. |
|
Flexibility |
by wayward (No verified email address) |
Current rating: 0 04 Oct 2005
|
|
I've noticed that the various working groups seem to have "bursty" patterns of usage, and it seems likely that WRFU will also. In other words, the need for space varies depending on what the members are currently doing. It might make sense to focus on developing spaces that could multiple groups could share. For example, WRFU, video, and radio could all benefit from a "studio" area with good accoustics for recording. |
|
True, to a Certain Extent |
by ML (No verified email address) |
Current rating: 0 04 Oct 2005
|
Wayward,
Yes, working group usage is rather sporadic and uncertain in terms of what times that people will be working. However, since WRFU is working toward 24/7 broadcasting (and the schedule is filling up nicely already), there will almost always be someone in the WRFU space. In fact, given that WRFU requires all programming groups to have at least two members for a permanent slot, there will frequently be two people working in or around the studio. This is just one of the concerns that we have about such a relatively inadeqaute space, squarefoot wise.
Another issue is that WRFU people will likely need pre-production space for some shows. And I have always supported making sure we have enough useful studio space for Print, Radio, and Video. Danielle's proposal isn't as much of an issue for Print, but the glassed-in spaces in it are of limited use for studio space for either Radio or Video. When there's a show on, which I hope is soon at least 2 to 3 nights a week, they will be totally unusable. This is one reason why combining at least one useful sound/video studio with the WRFU 24/7 studio in the basement makes a lot of sense. |
|
RFU in the Basement vs. Donovan's Picture |
by Danielle (No verified email address) |
Current rating: 0 04 Oct 2005
|
I much prefer Donovan's picture which expands the RFU space greatly than putting RFU in the basement. I would prefer to put media production in the basement instead of RFU although I still think we can do both on the first floor. RFU is on the air 24/7 - this is an ideal opportunity to have a media production face to the whole center.
If we cut the Mezzanine level work (which has been in these from the beginning, but the architect was wrestling with the stairs) then we could have the funds perhaps to build another media production room. Let's discuss financials & priorities.
What I don't understand is what the extra room in Donovan's picture with be used for. Can someone please tell me what can not happen the the space I proposed in my diagram? If something can't happen there, then we have a compelling reason to make it bigger.
Also, can someone please tell me why, even after we have discovered that WEFT has similar windowage and prometheus can weighed in on windows, why we can't have two windows?
I hear insults and cage rattling, but I don't hear the specific programming needs that can't happen if we get a smaller board and build the studio as the architect first drew it.
BTW, When I say "outreach" I don't mean profit center - I mean getting folks on the air who would otherwise not consider that idea as applying to them. I am advocating for all those people who have never touched radio before who will get involved with they see it. |
|
Re: RFU and Media Production Space Proposal |
by Donovan (No verified email address) |
Current rating: 0 04 Oct 2005
|
In my mind, the benefit to the design I propose is that it a) makes the room larger and thereby more flexible, particularly if we stick with the large mixing board that we have been talking about using and more particularly to accomodate the idea of having multi-participant talkshows, and, b) gives RFU access to the vault, which judging from the blueprints would allow us to store a lot of music or other media in the adjacent to the studio instead of down a flight of stairs.
Like all of the other proposals, mine is not perfect, however, as I stated, I thought it took into account many of the issues being debated by everyone involved and was an ATTEMPT to create a compromise that perhaps, everyone could agree on. |
|
Re: RFU and Media Production Space Proposal |
by Bob Illyes (No verified email address) |
Current rating: 0 04 Oct 2005
|
I'm bringing accurate drawings of the space in contention regarding WRFU to the radio meeting tonight. There are two needs for the WRFU space that can be used to argue for very different floor plans: 1) Keeping the WRFU room quiet during a highly-amplified performance. and 2) making the acoustics of WRFU optimal for broadcasting.
For the best acoustic isolation from the stage area, the wall should be near the current wall separating the PO box area from the proposed media production room. The various proposed diagonal walls will more than double the amount of wall for noise to pass through, partly due to the different ceiling heights. I'll explain tonight.
On the other hand, it is argued that a diagonal wall is needed to reduce room resonances, and that a square room is especially bad. There are a couple of things wrong with these arguments. 1) The room is not square. It's not even rectangular. 2) The diagonal wall will reduce resonances, but proper wall, ceiling, and floor treatment will take care of them too. The diagonal wall looks like very expensive over-kill to me, as well as worsening the noise problems during concerts.
With regard to windows, any rigid smooth surface, concrete or heavy plate glass, is the acoustic equivalent of a mirror. Extra sound absorbing surfaces will be needed as the amount of glass is increased. We are already in trouble because of a concrete ceiling and floor, which are also sound mirrors. Note that the basement rooms have the same problem. I do, whatever we settle on, think that we need to retain some basement production space.
In a volunteer organization, there is no way to know what mix of WRFU and other media production will be in demand a few years from now. To retain flexibility, I'd like to keep as much shared space as possible that can be used by all media. It should be noted that for any purposes other than live radio during concerts, much less sound isolation is needed. Video and radio production have simply avoided concerts in the past. |
|
Standing aside on the south window issue |
by Danielle (No verified email address) |
Current rating: 0 04 Oct 2005
|
I very much support us coming to consensus on the studio design. Since the focus of the conversation keeps turning away from the concrete issues at hand and towards personal attacks against me, I will recuse myself from tonight's RFU meeting in the hopes that that will refocus discussion on the studio design. I will be at space meeting on We at 8 and always happy to answer questions any time - just e-mail me.
In wading through the studio conversation, it appears we may be close to consensus on Mike's 10/2 proposal (pasted below).
The only concern I have maintained with this proposal is my desire for a south facing window.
If my desire for a south facing window is the only thing that stands between us and consensus, I will stand aside on that issue.
- Danielle
Mike L proposal from 10/2:
This is what I propose to resolve the issues raised by the need to construct an appropriate studio for RFU.
1. That RFU consult with Bill Taylor about whether he is OK with RFU shifting use of the donated board to the IMC Shows group for their use. If this transfer is acceptable to Bill, then Shows would need to be approached to see if they are interested in the big board, suitably made operational for Shows use during the barnraising, in exchange for their sharing half the cost of a more appropriately-sized, broadcast-quality board for use as the primary RFU sound board. Shows as been working toward buying a new board and may already have saved part of their half of the cost of the board needed by RFU. RFU will require a loan from IMC general funds to cover its half of the new board’s cost and Shows may need a loan from IMC general funds to finance whatever part of their half of the new RFU board that they cannot cover at this time. If Shows is not willing to accommodate this switch for whatever reason, then the IMC will pick up half the cost of a suitable and appropriate new board and RFU will pay the other half of the cost, in order to fit in the space selected for use by the RFU studio. This use of IMC general funds would need to be approved by Steering. The big board will then either be returned to Bill or otherwise disposed of in accordance with his wishes.
2. That the layout of the original slanted northeast wall in the original studio proposal be partially reinstated, so that it may be altered to run its course, still at an angle, to both simplify construction and increase it sound reflective characteristics. Preferably, this angle will start at the southeast corner of the vault wall, eliminating the short perpendicular wall that ran south in the original plan, which is problematic for reflecting sound. The wall in the southeast corner of the studio space would preferably run at an angle to the northeast to intersect the angled wall running toward the southeast from the corner of the vault wall. These revisions that eliminate perpendicular walls on the east side of the studio will further reduce the sound transfer from the performance area. This will also retain the south entrance door to the proposed production room, where the angled studio walls will meet the west side of this door frame, however, production may choose to eliminate this door and replace it as is found acceptable to increase usable space in the production room. Now that further research has been done, it appears that the architect was at least cognizant of some of the sound control issues with the shape of the studio that have been completely ignored the latest revision of the original plan.
3. That these angled east walls, which divide the proposed RFU studio from the proposed production room, incorporate a window, of suitable double-paned, sound-reducing construction, no bigger than needed so that future needs for production can be coordinated between the two rooms. This window should be no more than two feet by three feet to minimize the reflective surface it presents. There will be no window in the short wall that faces the performance area.
4. That there be just one other window in the studio, other than the window to the production room mentioned in point two above, on either the west or south walls, of suitable double-paned, sound-reducing construction.
5. That the door from the northwest stairwell be the only entrance to the studio, with its lockset replaced with lever style handles.
6. The existing glass walls in the space to be used for the RFU studio will be completely removed and recycled for use elsewhere in the building, as appropriate. Except for the existing wall shared with the vault on the north around to the studio entrance door, studio walls will be of new, sound-reducing isolated double stud construction, except for the existing structural columns. This will include replacing the existing door into the former postmaster's office with a soundproof wall of the same construction as the rest of the new studio walls. RFU will pay for the costs of this construction that exceed typical single stud non-isolated wall construction, again through a loan from IMC general funds. |
|
WRFU space consensus, 10/4/05 |
by John Anderson phlegm (nospam) diymedia.net (unverified) |
Current rating: 0 05 Oct 2005
|
As excerpted from the meeting notes of tonight:
RFU STUDIO PLAN
CONSENSUS: reached on first floor studio space, based on mike’s proposal of Oct. 2 with the following changes:
--Eastern wall will be straight (north-south) with no angle. Wall should be situated as far to the east as possible, consistent with space covered by 13’ concrete ceiling.
--No window on the western wall; a window on the southern wall (4X4 or 4x6); a small (2x3) window on the eastern wall. We’re flexible on the dimensions, based on the donation potential of materials.
--Construction will maximize acoustic integrity of the studio.
--RFU will request a loan from IMC general funds to cover half the cost of a new studio console; this is in exchange for RFU agreeing to a smaller space than was required by the larger board. IMC will otherwise absorb the cost of studio construction.
RFU-Tech will spend time in the short-term nailing down recommendations for a studio console, microphones and related equipment, and interior studio soundproofing. |
|
Re: RFU and Media Production Space Proposal |
by malatesta malatesta (nospam) yahoo.com (unverified) |
Current rating: 0 05 Oct 2005
|
Greetings UCIMC! When we last corresponded I had succeeded in honking off large numbers of folks over my comments about purchasing the building. From time to time I have checked the website to see what the future has wrought. Now I am vicariously witnessing a dispute over details that has descended into name calling and petty personality disputes. My favorite part of this thread is the comment from Danielle entitled: "Standing Aside on the Window Issue."
Well. I'm going to take the optimistic view and conclude that all the issues that radicalized me and many others have now been resolved, and that leaves the locals in CU the spare time to take up "the window issue." Whoever wrote in as "Amazed" has it more or less right, I think. What is hell is wrong with this picture? -- m |
|
Re: RFU and Media Production Space Proposal |
by La Ley (No verified email address) |
Current rating: 0 05 Oct 2005
|
|
Hey Malatesta, you sure told me so, didn't you? :-) What you're seeing on this website is just the tip of the iceberg. People are even more petty and self-absorbed in personal emails and in mailing lists. Just so long as Queen Danielle is worshiped and adored, things go along smoothly, though. So, what were you saying was wrong with this picture? |
|
Re: RFU and Media Production Space Proposal |
by malatesta (No verified email address) |
Current rating: 0 05 Oct 2005
|
|
What's wrong with this picture? Everything. Petty bickering, power struggles, egotism, greed, self-promotion, jealousy. What's missing? Stopping the war. Housing the homeless. Feeding the starving. Protecting civil liberties. But that aside, sounds like you folks are spending your time on truly worthwhile and socially important matters. |
|
Re: RFU and Media Production Space Proposal |
by Figures... (No verified email address) |
Current rating: 0 05 Oct 2005
|
|
Is there no forum on this Earth free of trolls? |
|
malatesta's Not So Impressive Contribution to the Revolution |
by Dose of Reality (No verified email address) |
Current rating: 0 05 Oct 2005
|
As far as anyone can tell, despite his pretensions to revolutionary rigor, the sole sum of malatesta's contributions to the revolution seems to consist of anonymously at sniping at people on this website.
To say the least, it's not a very impressive contribution.
I'm sure by the time that the first minute WRFU is on the air, everyone involved in the struggle to get it on the air, whatever conflict was involved in the process, will have done far more than malatesta will ever do to change anything.
BTW, the IMC is a media and arts center that supports a diverse range of projects. It is not a homeless shelter. It is not the ACLU. Food not Bombs is a project associated with and supported by the IMC. Books to Prisoners is also housed at the IMC and if malatesta actually knew how much space that takes, he'd appreciate the expanded space in the new building.
Maybe he really prefers that people in the community not have another community radio station? If so, his opionion seems to be at odds on this and the many other IMC-associated projects that have drawn strong personal, financial, and moral support from the community.
In the meantime, malatesta is free to display something other than his morose condemnation of people actually working on projects that make a difference. |
|
Re: RFU and Media Production Space Proposal |
by La Ley (No verified email address) |
Current rating: 0 05 Oct 2005
|
Malatesta,
You're partly right, and partly wrong. With respect to the WRFU controversy, I've seen plenty of petty bickering, power struggles, egotism, greed, self-promotion, and jealousy. Why, I don't know. No one has given me an adequate explanation. I think it has to do with the personality flaws and insecurities of some leaders that don't know how to compromise and have to micromanage everything. Oh, yeah, they're also highly defensive, have trouble admitting when they're wrong, and don't know how to apologize :-). That aside, the IMC has some great programs, Books to Prisoners being an outstanding one. The Public i is also doing well. Other programs will flourish in time, so there is no reason to give up hope. I just call them as I see them.
Note to Figures: Neither malatesta nor I are trolls. Go fish elsewhere. |
|
Re: RFU and Media Production Space Proposal |
by malatesta (No verified email address) |
Current rating: 0 05 Oct 2005
|
|
Simply saying that I find it discouraging that y'all spend so much time "consensing" on "windowage." Last word from here -- for now. |
|
Re: RFU and Media Production Space Proposal |
by wayward (No verified email address) |
Current rating: 0 05 Oct 2005
|
|
This actually doesn't seem that surprising. In any organization with more than one person, you'll have politics. The IMC and WRFU happen to be at a point where many people have different goals, and some of them happen to conflict with each other. So the situation is getting hashed out on the website, the mailing lists, and in meetings. Personally, I think it'd be scarier if we had a "Stepford IMC" where everyone always agreed on everything. |
|
Re: RFU and Media Production Space Proposal |
by La Ley (No verified email address) |
Current rating: 0 05 Oct 2005
|
|
Wayward, the Stepford analogy is a little scary, because it's something I've thought about before with regard to UCIMC. However, there are free spirits, or at least people who haven't got with the programming, and I'm one of them ;-) |
|
Re: RFU and Media Production Space Proposal |
by Gary mdwestdude (nospam) aol.com (unverified) |
Current rating: 0 11 Oct 2005
|
Hi folks,
i was doing some research on soundproofing and found your conversation here. It's interesting because it just so happens I looked at your facility today as possibly being involved with some of the work.
I see good comments from several people, and it is indeed a situation offering some complexities.
Mr Kotheimer (waving to Paul and Darrin) has raised a good point about microphones and such.
One particular thing Paul mentioned is the transfer of sound through ductwork. This is something I hope the architect has considered because there is a big duct travelling overhead inside what will be the radio room.
My thought is that a double wall, perhaps skewed to each other will probably be essential to the wall facing the performance area, although your media room will be acting as a buffer to some degree. I'm not too concerned about noise issues coming from inside the booth as they can be worked out. It's the noise from outside which may be an issue. Contrary to that, I'm friendly with the folks at WWHP and they get by on far less than ultimate conditions and they still remain to be my favorite station. ;-) (no plug intended)
Whether I end up involved with your project is yet to be seen, but I certainly hope the architect comes through with your plans soon.. as nobody can budge until then. Hence, I feel your pain.
i do think any window(s) towards the lobby definitely need to be secured for sound... and limited in size. Lord only knows what kind of noises occur in there from time to time, and it is a substantial echo chamber.
At any rate... best of luck... hope things go well for everyone!
-Gary |
|